Adaptive Reuse:
When a Bar Meets Plinths
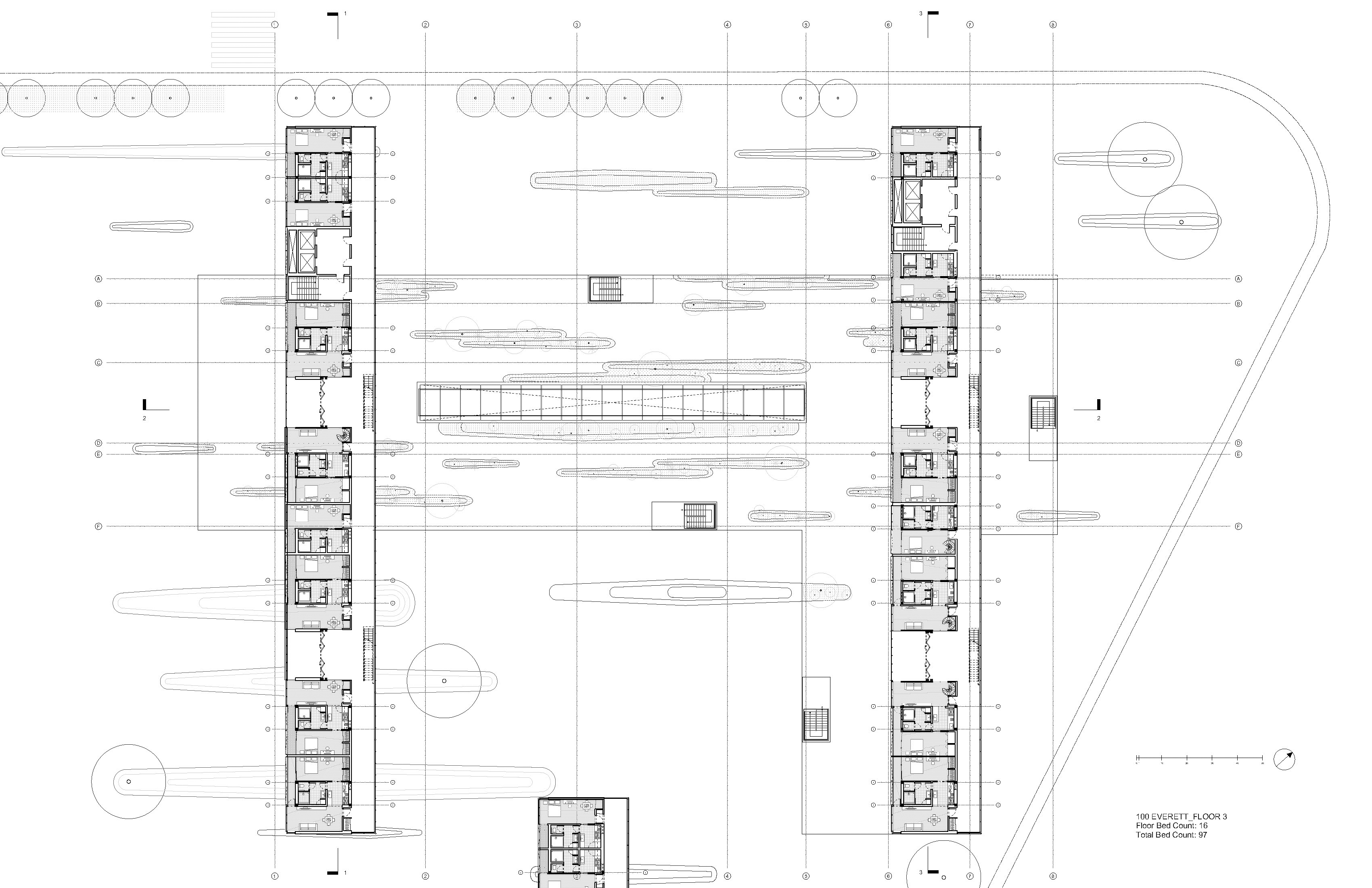
This adaptive reuse project
transforms a suburban office park into a modern residential community in
Chelsea, MA, through a strategic overlaying of the bar as a new typology with
the original deep-plated office buildings. The intervention introduces a series
of freestanding bars that attach to the existing structures, which are unified
through a landscape that is designed with flood resiliency. The design of the
ground plane hosts greenery, playgrounds, waterscapes, and covered gathering
spaces underneath the bars. By embracing water as part of the community's daily
life, this design frames a flooding condition as an extension of the existing
environment.
Year: 2023 Spring
Course: Arch Core IV
Team Partner: Victor Ohene
Instructor: Grace La
1 Semester


















